Projektübersicht Atelierhof Weissensee

Liebermannstraße 75-85 in 13088 Berlin
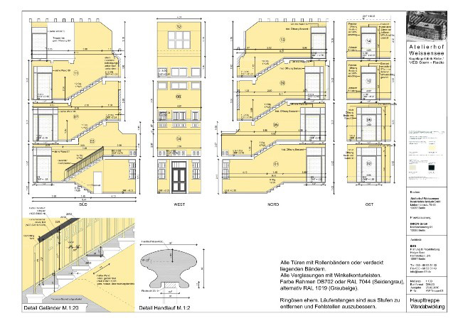
ehem. Kugellagerfabrik Riebe / VEB Stern-Radio
von Bruno Buch (1913-17)

Denkmalpflegerische Konzeption, Entwurf und Detaillierung der straßenseitigen Fassade und der Haupttreppenhäuser des Verwaltungsgebäudes, Entwurf Kuppelbau.

Bauherr
 
Atelierhof Weissensee Kunst-Medien-Handwerk GmbH
Zeitraum 2014 – 2016
Entwurf Holger Sack
Mitarbeit Simon Lütgemeyer
Leistungsphasen 1 – 3
Bilder: Florian Krawen, B19
Bild: B19 Bild: B19 Bild: B19 Bild: B19 Bild: B19 Bild: B19 Bild: B19 Bild: B19